Who we are?

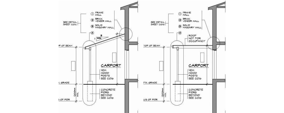
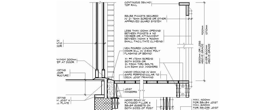
Hirji Engineering Services provides structural design and inspection services for the existing and new residential buildings in the Greater Toronto Area. For the existing buildings the company provides services for the underpinning, structural design for the addition and interior alterations.

The services provided are for 3 stores or less as defined under Part 9 of The Ontario Building Code.

Hirji Engineering Services also provides services for the inspection of fire damaged buildings to determine their structural integrity.

Hirji Engineering Services also provides service in the interpretation of the Ontario Building Code.